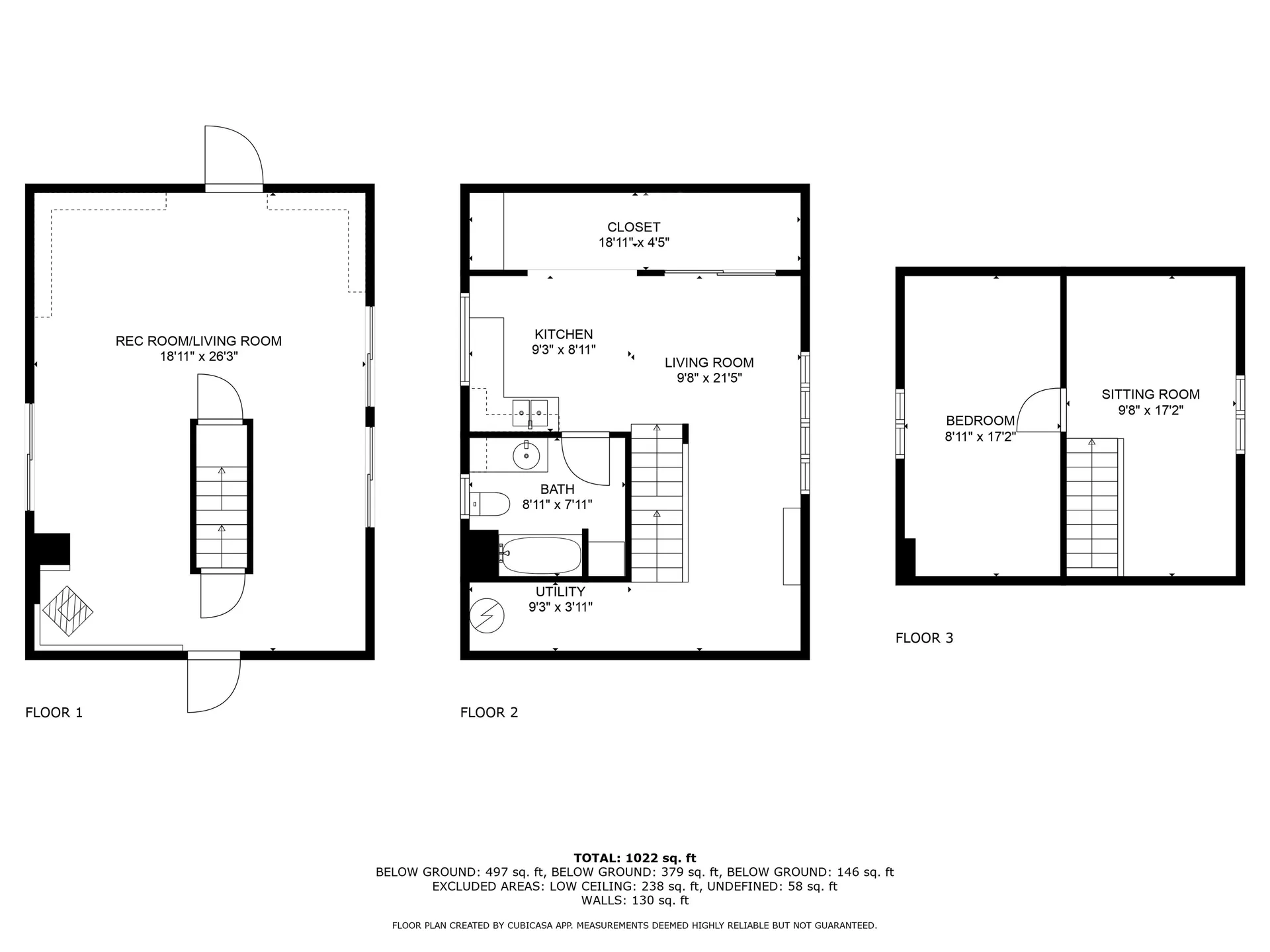
Also listed as a single family under MLS 5052630, this property is just ¾ of a mile from the heart of South Royalton and Vermont Law School, this versatile property offers tremendous rental potential with some TLC.With three separate units-each with its own private entrance-this is the perfect opportunity to renovate and generate strong rental income. The main unit in the house has 3 bedrooms and 1 1/2 baths. The second unit in the main house is a 1 bed 1 bath apartment with full kitchen. The main house features charming bones and could easily be owner-occupied while updating the remaining units or sharing the space with a roommate to offset costs. The attached barn has been converted into the third 1 bedroom 1 bathroom plus an office/bonus space unit with full kitchen. The barn does have signs of cigarette smoke exposure, but offers a project-ready space for value-add improvements. The septic system needs a new pump, but otherwise is in great condition (inspection available upon request). Whether you're an investor looking to build your portfolio or a homeowner seeking flexibility and future income, this property is brimming with potential. Enjoy sweeping views of the White River and the unbeatable convenience of South Royalton living. Some photos have been virtually staged.

Listing Tools

Property Details of 600 North Windsor Street

Property Details

Interior Features

Exterior Features

Utilities and Appliances

Community

Royalton, VT Real Estate Market Data

There is no data available

Royalton, VT Schools

School NameDistanceTypeGrades

Map Location

Broker Reciprocity 

Copyright 2025 PrimeMLS, Inc. All rights reserved. This information is deemed reliable, but not guaranteed. The data relating to real estate displayed on this display comes in part from the IDX Program of PrimeMLS. The information being provided is for consumers’ personal, non-commercial use and may not be used for any purpose other than to identify prospective properties consumers may be interested in purchasing. Data last updated November 11, 2025 9:39 AM EST

 

Hi there! How can we help you?

Contact us using the form below or give us a call.

Send Us A Message:

I agree to receive marketing and customer service calls and text messages from LindeMac Real Estate. To opt out, you can reply 'stop' at any time or click the unsubscribe link in the emails. Consent is not a condition of purchase. Msg/data rates may apply. Msg frequency varies. Privacy Policy.

Do not fill in this field:

This site is protected by reCAPTCHA and the Google Privacy Policy and Terms of Service apply.

Hi there! How can we help you?

Contact us using the form below or give us a call.

Send Us A Message:

Do not fill in this field:

This site is protected by reCAPTCHA and the Google Privacy Policy and Terms of Service apply.

Hi there! How can we help you?

Contact us using the form below or give us a call.

Send Us A Message:

Do not fill in this field:

This site is protected by reCAPTCHA and the Google Privacy Policy and Terms of Service apply.

Do not fill in this field:

This site is protected by reCAPTCHA and the Google Privacy Policy and Terms of Service apply.

Do not fill in this field:

This site is protected by reCAPTCHA and the Google Privacy Policy and Terms of Service apply.

Do not fill in this field:

This site is protected by reCAPTCHA and the Google Privacy Policy and Terms of Service apply.

$

Do not fill in this field:

This site is protected by reCAPTCHA and the Google Privacy Policy and Terms of Service apply.