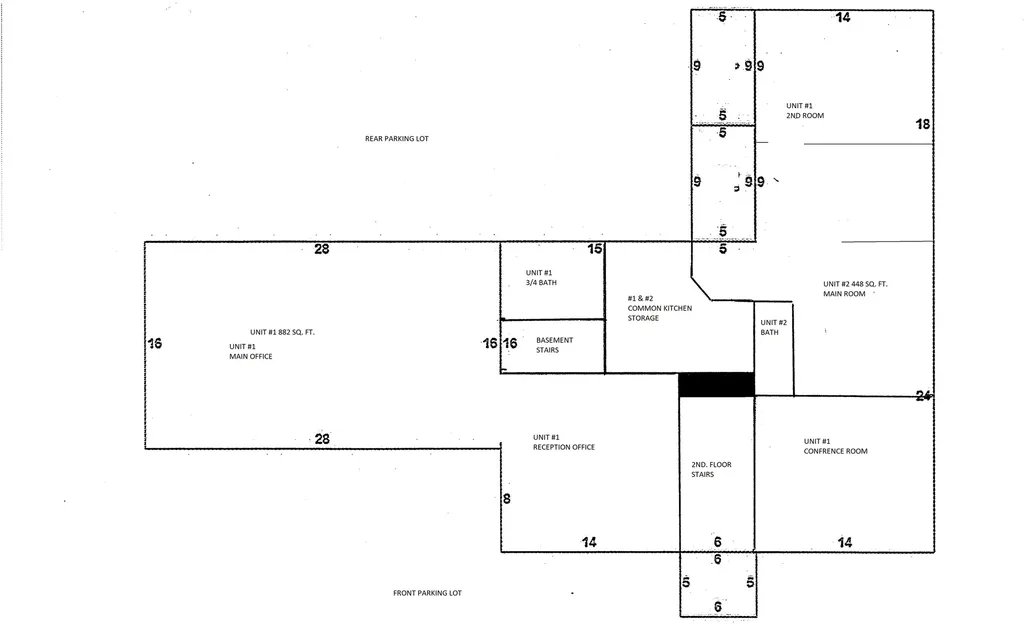
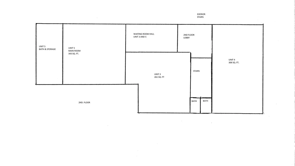
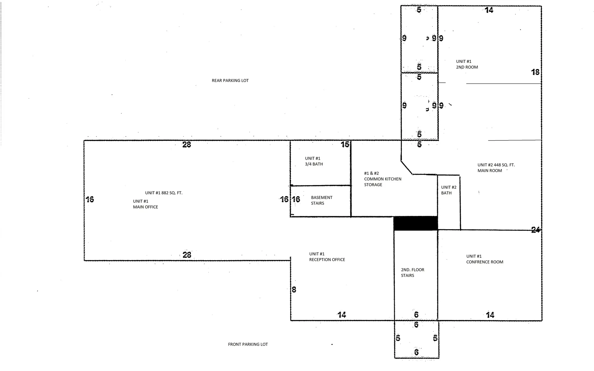
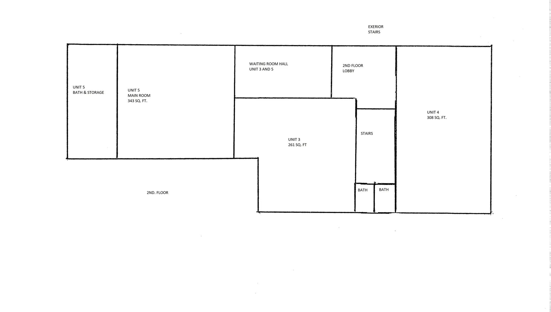
Prime Commercial Property on Route 12A - West Lebanon, NH. Excellent location with direct access and prominent signage on Route 12A (South Main Street), with two curb cuts, in the heart of West Lebanon's retail and business corridor. Positioned directly in front of Hannaford, next to Jiffy Lube, and across from Glen Road Plaza, this high-visibility property benefits from heavy traffic flow and strong neighboring anchors. Ample parking with approximately 16 to 20 spaces. Currently configured with 5 tenant units: 2 on the first floor, 3 on the second. All tenants are on month-to-month or annual gross leases. Newer roof and updated heating system. Separate electric meters for all units (except Units 4 and 5, which share one meter). Private half baths in all units; Unit 1 features a 3/4 bath. Shared kitchenette and handicapped access between Units 1 and 2. Units 4 and 5 share a common waiting room/hallway. Flexibility for Owner-Users: The main tenant in Unit 1 is open to vacating with appropriate notice, allowing for the relocation to an alternate suitable location, allowing for a potential owner-occupied scenario or reconfiguration on the first floor. This is a versatile investment or owner-user opportunity in a highly desirable, high-traffic location. Shown by appointment only, detailed income and expenses available. The owners are licensed NH Real estate agents.

Listing Tools

Property Details of 120 South Main Street

Property Details

Interior Features

Exterior Features

Lebanon, NH Real Estate Market Data

There is no data available

Lebanon, NH Schools

School NameDistanceTypeGrades

Map Location

Broker Reciprocity 

Copyright 2026 PrimeMLS, Inc. All rights reserved. This information is deemed reliable, but not guaranteed. The data relating to real estate displayed on this display comes in part from the IDX Program of PrimeMLS. The information being provided is for consumers’ personal, non-commercial use and may not be used for any purpose other than to identify prospective properties consumers may be interested in purchasing. Data last updated February 18, 2026 10:52 PM EST

 

Hi there! How can we help you?

Contact us using the form below or give us a call.

Send Us A Message:

I agree to receive marketing and customer service calls and text messages from LindeMac Real Estate. To opt out, you can reply 'stop' at any time or click the unsubscribe link in the emails. Consent is not a condition of purchase. Msg/data rates may apply. Msg frequency varies. Privacy Policy.

Do not fill in this field:

This site is protected by reCAPTCHA and the Google Privacy Policy and Terms of Service apply.

Hi there! How can we help you?

Contact us using the form below or give us a call.

Send Us A Message:

Do not fill in this field:

This site is protected by reCAPTCHA and the Google Privacy Policy and Terms of Service apply.

Hi there! How can we help you?

Contact us using the form below or give us a call.

Send Us A Message:

Do not fill in this field:

This site is protected by reCAPTCHA and the Google Privacy Policy and Terms of Service apply.

Do not fill in this field:

This site is protected by reCAPTCHA and the Google Privacy Policy and Terms of Service apply.

Do not fill in this field:

This site is protected by reCAPTCHA and the Google Privacy Policy and Terms of Service apply.

Do not fill in this field:

This site is protected by reCAPTCHA and the Google Privacy Policy and Terms of Service apply.

$

Do not fill in this field:

This site is protected by reCAPTCHA and the Google Privacy Policy and Terms of Service apply.